Nieuwbouw bedrijfsgebouw ‘s-Hertogenbosch
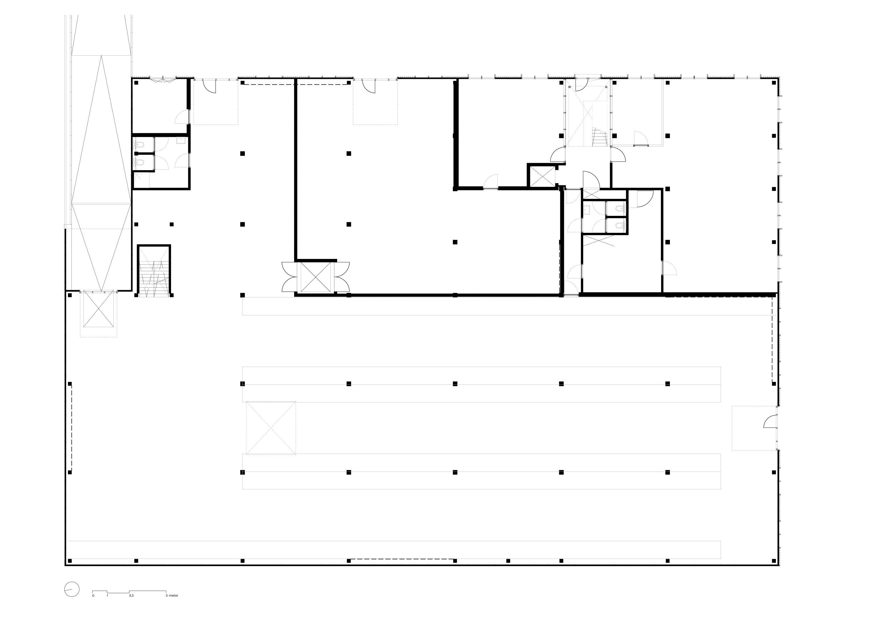
Aan de Rosmalense Plas langs de A2 bij ‘s-Hertogenbosch heeft Lunet Architecten een multifunctioneel bedrijfsgebouw ontworpen. Het gebouw is opgezet in een systematisch grid met veelvouden van 0,9 meter. Hierdoor kon het hele gebouw met standaardafmetingen van sandwichpanelen en vliesgevels worden opgebouwd, dat is zowel kostenefficiënt en geeft een hoge bouwsnelheid. In het gebouw zijn kantoren, een showroom en opslagruimten met een laaddock gesitueerd. Deze functies liggen slim geclusterd in het gebouw, waardoor deze functies separaat kunnen worden gebruikt door verschillende gebruikers en huurders. Door het gebouw te positioneren in de hoek van het kavel, op de perceelsgrenzen, is er voldoende ruimte om te parkeren en het opstellen van vrachtwagens aan de straatzijde.
Op de hoek van het perceel is een stedenbouwkundig accent gecreëerd door ter plaatse van het kantoor het bouwvolume met één bouwlaag door te laten lopen. Hierdoor ontstaat er tevens een kantoorverdieping met dakterras met een wijds uitzicht op de omgeving.
Het gebouw is voorzien van lichtgroene aluminium sandwichpanelen met een klein reliëf. De verdiepingshoge aluminium vliesgevels lopen mee in het ritme van deze gevelpanelen en worden geaccentueerd door uitstekende, verticale profielkokers. Het gebouw is opgetrokken uit een witte staalconstructie met daarop betonvloeren en stalen daken. De kantoren hebben een industriële uitstraling, waarbij de toegepaste techniek zichtbaar is in het interieur.







Projectgegevens
Opdrachtgever:
Ontwerp:
Aannemer:
Adviseurs:
ACR klimaat BV
2023
Van der Meijden
Archimedes bouwadvies, DGMR, Huisman & van Muijen
Projectgegevens
Opdrachtgever: ACR klimaat BV
Ontwerp: 2023
Aannemer: Van der Meijden
Adviseurs: Archimedes bouwadvies, DGMR, Huisman & van Muijen